


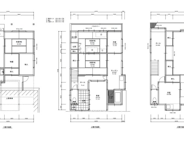
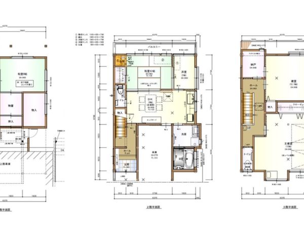
築50年の1階の増築と1階の全面のリニュアルです。
なるべく床も無垢材を使い自然素材仕様のリニューアルをしたい。
弊社の地域新聞の夢職人を保管されてました。
リニューアルする時には弊社に頼もうと思っておられたそうです。
既存不満
①DKが狭すぎる。暗い
②冬寒い
③風呂場がだだ広くて寒い。脱衣場がない。洗濯機が風呂にある。
④夫婦別々の寝室
リフォーム要望
①DKを6畳から9畳に広げる。窓を大きくして明るくしたい。
②1階は全面断熱リフォーム冬の寒さを無くしたい。
③浴室暖房付きのシステムバス。
3畳の洗面脱衣室をとりたい。
増築で実現。
④増築により奥様の寝室確保
使用材料
在来木造 外部屋根:ガルバニュウム鋼板:外壁モルタル弾性タイルローラー内部:床:桧板:壁:珪藻土・聚楽・越前和紙・天井:桧板・越前和紙
※画像をクリックすると詳細が表示されます。
施工風景
玄関の床板は桧板に張替えました。
壁天井はハイクリーンボードに越前の和紙の壁紙を貼りました。
片引き戸を開けるとLDKに入れます。
床は桧の床板を張りました。
壁天井には越前和紙の壁紙を貼りました。
6畳のDKを10畳に広げました。
暗いDKを窓を広げて明るくしました。
床には桧板・壁には珪藻土・天井には越前和紙の壁紙と自然素材仕様にしました。
和室6畳ご主人様の寝室でした。
単板ガラスを複層ガラスにかえました。
床にも断熱材ミラフォームの第3種の厚み50㎜を敷きました。
押し入れは杉の無垢板にやり替えました。
断熱改修もしました。
トイレも床には桧板・腰壁も桧板・壁天井には越前の和紙の壁紙を使いました。
既存は在来のお風呂に洗濯機を置かれていました。
脱衣室がないので困られていました。
今回洗面脱衣室は3畳とれました。
床・壁・天井すべて桧の無垢板にしました。
洗濯機置き場、洗面化粧台・ダボレール付きの収納棚までつけました。
在来浴槽は寒くて困られていました。
浴室暖房付きのシステムバスにリニュアルされました。
奥様の寝室です。
増築しました。
ペアガラスのサッシをつけました。
床・外部に面した壁には断熱材ざを入れました。
奥様用の1間のクローゼットと半間の物入れを作りました。
3枚戸にして開口部が1間取れるようにしました。
クローゼットは枕棚つきです。
洗面脱衣室
いちばん家の中で湿気のある洗面脱衣室。
床壁天井すべて無垢の桧板仕様にしました。
桧の香りで包まれています。
調湿効果が珪藻土の6倍あります。
今までは脱衣室がなくて不便でした。
天井まである収納棚も設置しました。